Beschrijving
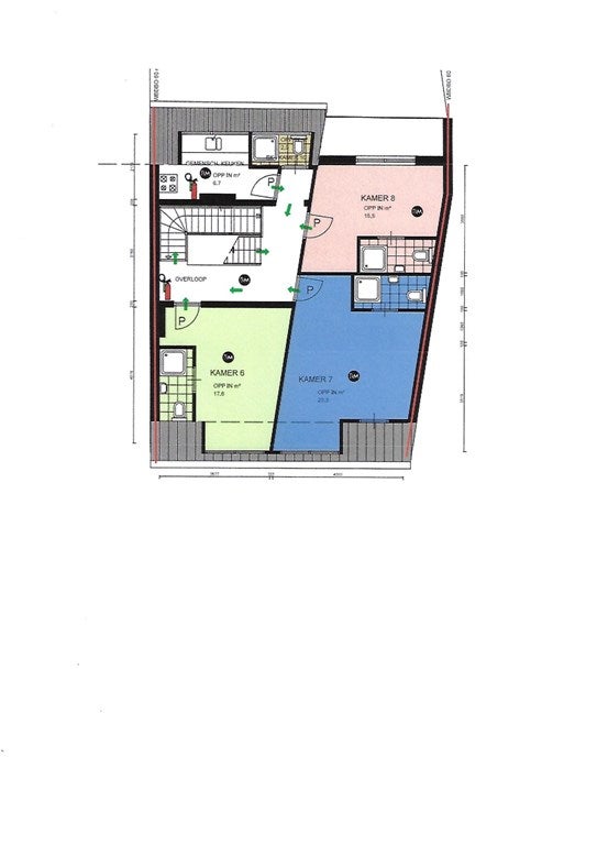
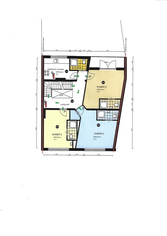
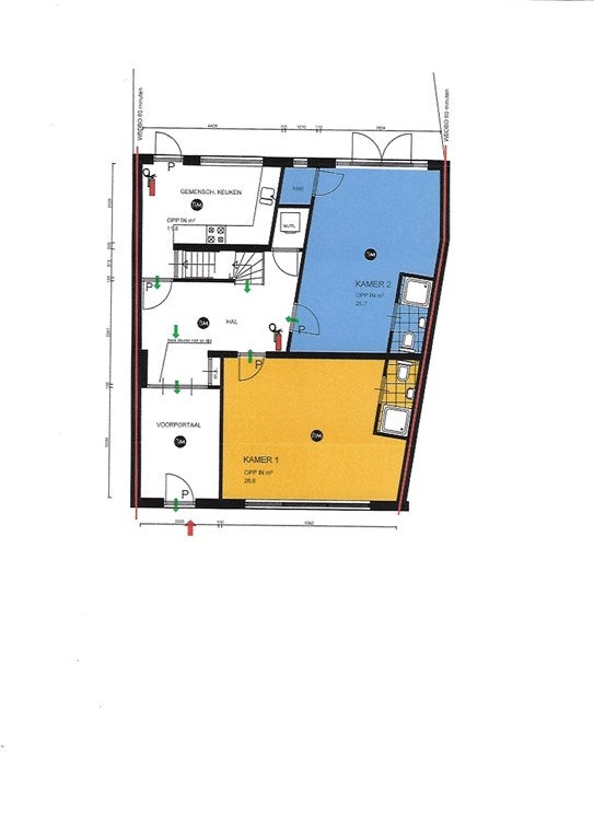
Kamerverhuurpand aan de Akerstraat in Heerlen Centrum.Kamer 1: 25,5 m2 voor € 774,23.Kamer 2: 25,7 m2 voor € 767,75.Kamer 3: 15,7 m2 voor € 654,12.Kamer 4: 21,5 m2 voor € 729,61.Kamer 5: 19,7 m2 voor € 704,40.Kamer 6: 17,6 m2 voor € 679,28.Kamer 7: 29,3 m2 voor € 742,11Kamer 8: 15,5 m2 voor € 654,12.Kamer 9: 7,2 m2 voor € 603,86.Kamer 10: 10,5 m2 voor € 641,49.Kamer 11: 10,2 m2 voor € 641,49….








