Beschrijving
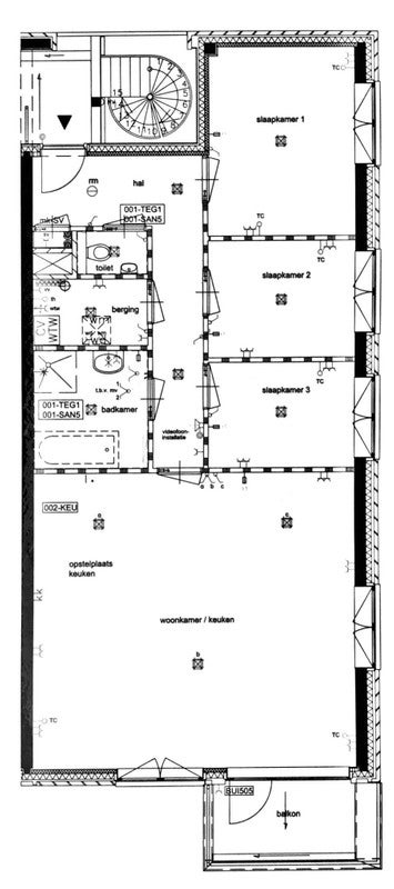
Belangrijk! Dit geldt uitsluitend voor een woningruil; je moet een huurwoning hebben om met deze huurwoning te kunnen ruilen.Ruime 4 kamer woning met 3 slaapkamers en zeer ruime woonkamer. Met complete keuken nog geen jaar oud. bouwjaar 2013VloerverwarmingMet balkon. Uitkijkend op het waterlandpleinEigen parkeerplaats in parkeergarageEen tweede parkeerplaats abonnement is eventueel over te nemen.








