Beschrijving
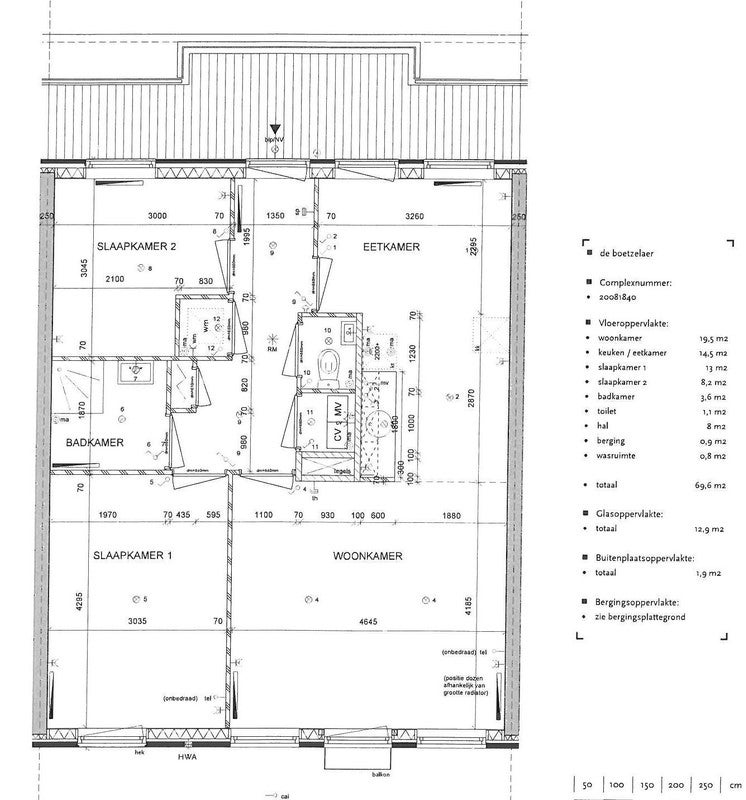
Belangrijk! Deze informatie betreft een woningruil; je moet een huurwoning bezitten om te ruilen. Ik heb een mooi appartement en neem de tijd om de juiste plek te vinden. Mijn licht, moderne (nieuwbouw 2014) woning is goed verlicht. Ik heb fijne buren en een school met speelplaats aan de overkant, wat op schooldagen geluid met zich meebrengt. Verder is de straat rustig, vooral ’s avonds en in h…








