Beschrijving
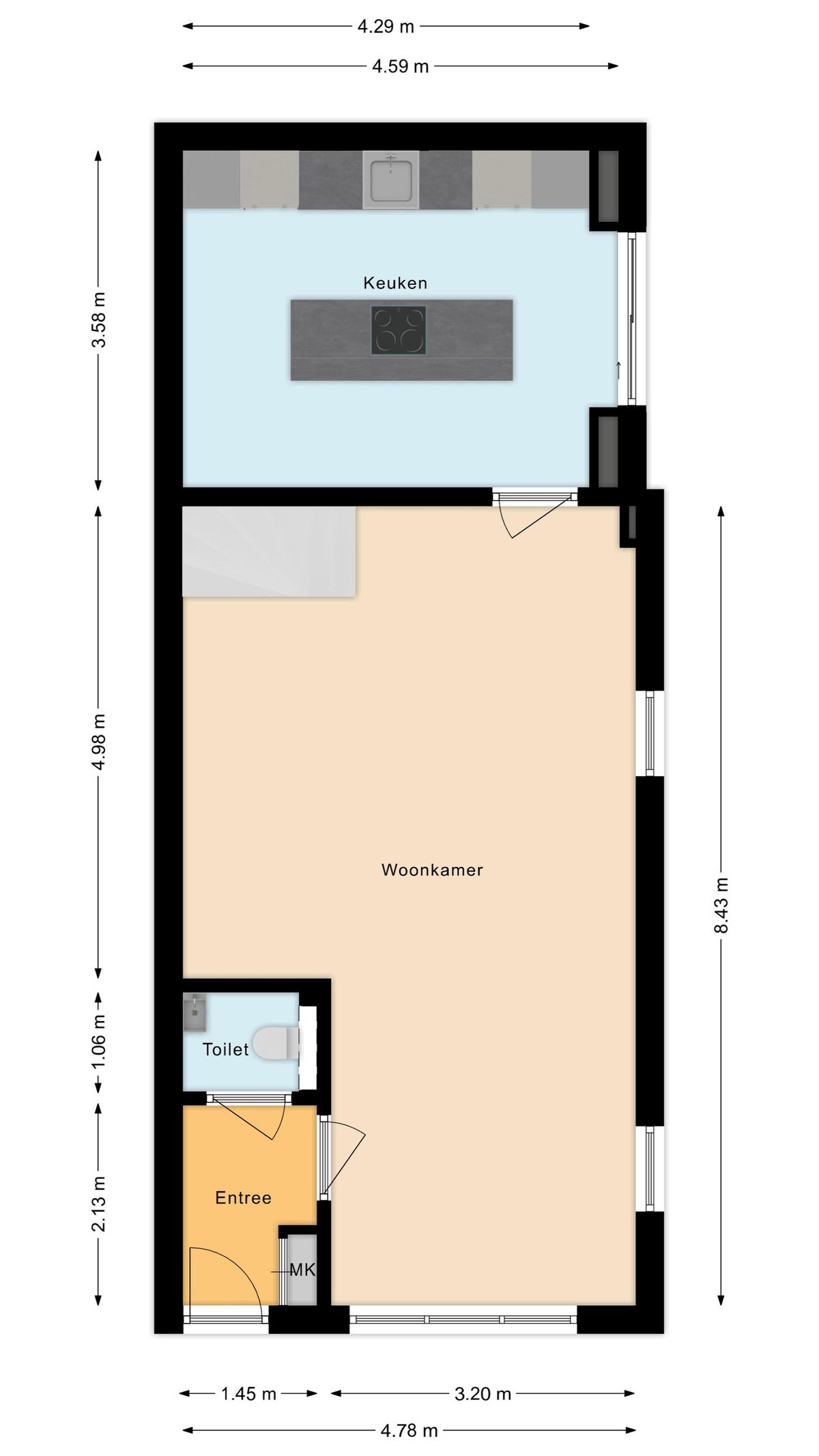
Deze volledig gemoderniseerde twee-onder-een-kapwoning aan de Torenstraat in Soest heeft energielabel A+++. Met vloerverwarming op alle verdiepingen en zonnepanelen biedt deze woning optimaal comfort. Op de begane grond bevindt zich de entree met hal en modern toilet, en de ruime woonkamer met grote raampartijen en een stijlvolle pvc-vloer in visgraatmotief. De open keuken aan de achterzijde be…








