huis Schermerhoek Capelle aan den IJssel

 780,00

SKU: bf1092915a7b Categorie:

Beschrijving

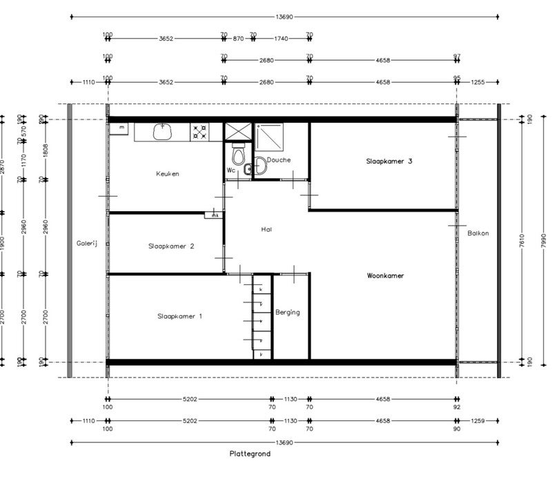
Belangrijk! Dit geldt uitsluitend voor een woningruil; je moet een huurwoning hebben om met deze huurwoning te kunnen ruilen. Deze mooie woning is pas gerenoveerd en beschikt over ruime kamers met nieuwe toiletten, leidingen, verwarmingen en glazen ramen. Op loopafstand zijn er meerdere kinderopvangcentra, scholen, bushaltes en winkels. Het metrostation De Terp ligt op minder dan 10 minuten lop…

Aanvullende informatie

Aantal kamers

Woonoppervlakte

Adres

Postcode

Plaatsnaam

Type gebouw

Parkeerplaats

Gemeubileerd