Beschrijving
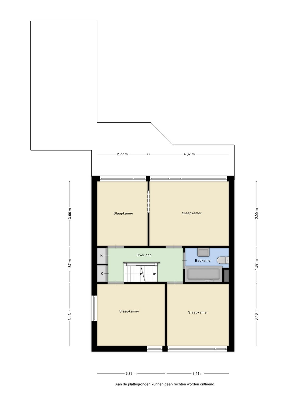
Te huur: royale, goed onderhouden tweekapper met 6 slaapkamers en 2 badkamers. Deze ideale gezinswoning in Maliskamp biedt een ruime woonkamer met houtkachel, een half open leefkeuken en een groene achtertuin met terrassen. De woning heeft een energielabel A, een garage en voldoende parkeergelegenheid. Gelegen in een lommerrijke wijk nabij sportfaciliteiten, supermarkt, basisschool en het centr…








