Beschrijving
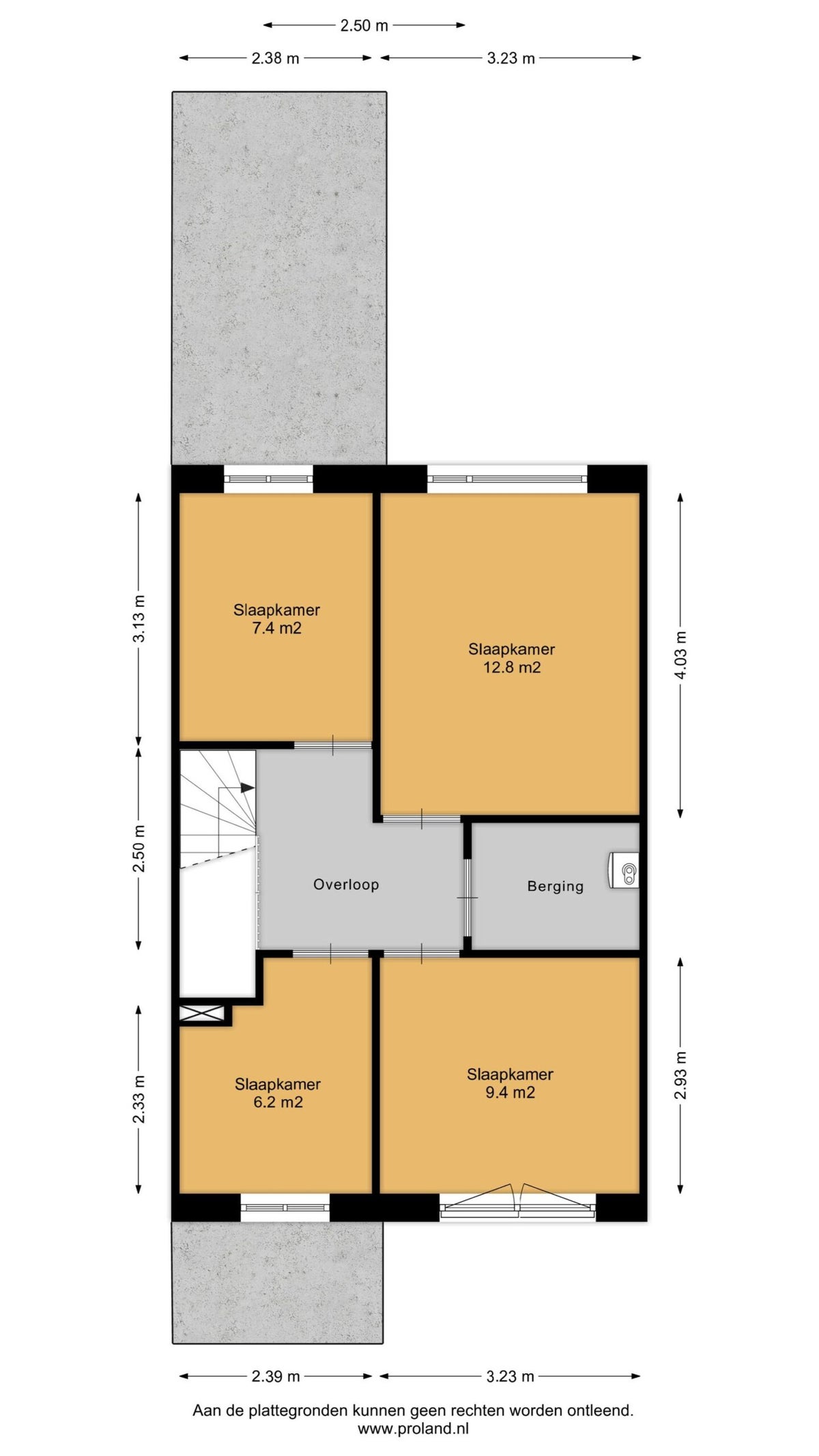
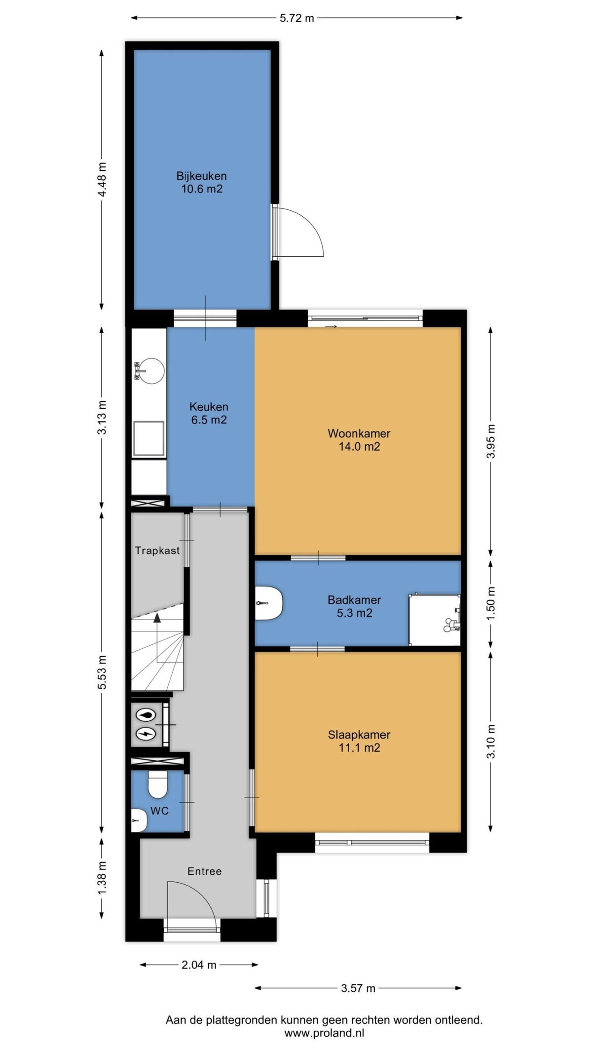
Dit moderne eengezinswoning, gebouwd in 2025, ligt in een rustige woonwijk en heeft een totaal woonoppervlakte van 103 m². Met zes kamers, waaronder vijf slaapkamers, biedt het volop ruimte voor een gezin. De woning is volledig geïsoleerd en valt in energieklasse A++++, waardoor het energieverbruik efficiënt is door de warmtepomp en de elektrische boiler voor warmwater. De inhoud van de woning …







