Beschrijving
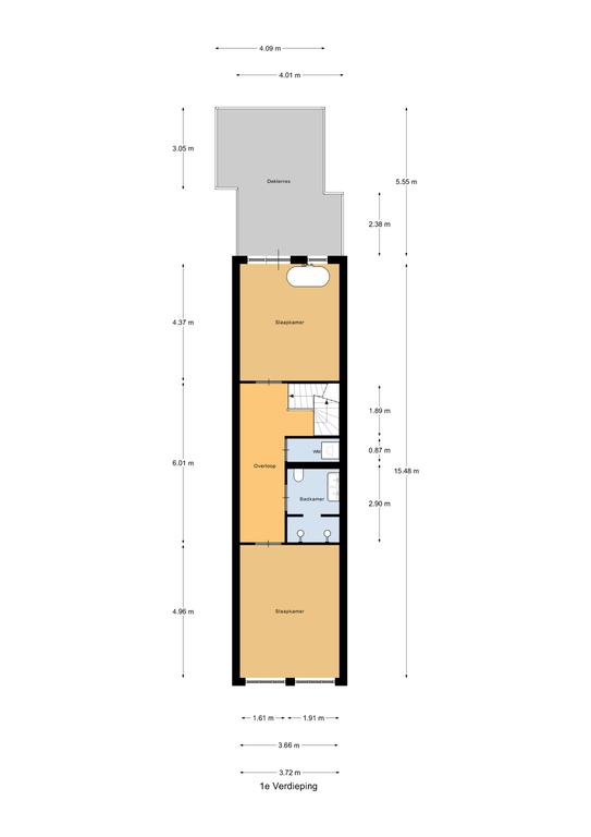
Monumentaal herenhuis in een van de mooiste straten van Hoorn, volledig gerenoveerd in 2022. Het huis heeft een ruime woonkamer, luxe keuken, 5 slaapkamers en 3 badkamers, met een achtertuin op het noordwesten. Voorzien van eiken visgraat parketvloer en pleisterwerk wanden en plafonds. Gelegen nabij de haven, restaurants en winkels. Beschikbaar vanaf 30 juni 2024, met een huurperiode van 2 jaar…








