Beschrijving
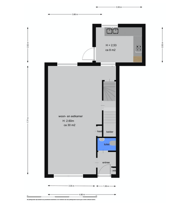
Deze recent gerenoveerde tussenwoning met een patio aan de voorzijde en een achtertuin met een gedeeltelijk overdekt terras is nu beschikbaar voor huur. Gelegen in een rustig laantje nabij het dorpscentrum van Laren, zijn alle voorzieningen binnen handbereik. De begane grond heeft een entree, vestibule, toilet, en een woon- en eetkamer met openslaande deuren naar de achtertuin. De halfopen keuk…








