Beschrijving
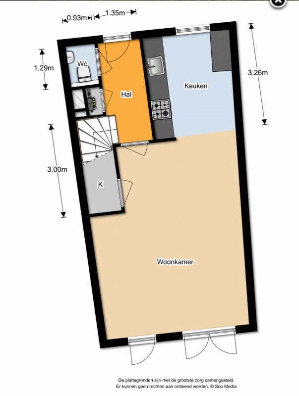
Belangrijk! Dit geldt uitsluitend voor een woningruil; je moet een huurwoning hebben om met deze huurwoning te kunnen ruilen.Deze woning heeft een woonoppervlakte van ca. 129,3 m2 verdeeld over 3 woonlagen. De woning beschikt over een fijne achtertuin op het zuid-oosten met buitenberging. De achtertuin is direct gelegen aan de ruime woonkamer die overloopt in de open keuken met een witte, strak…







