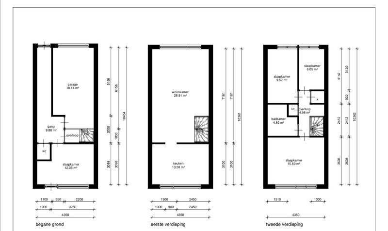
Beschrijving
Deze ruime woning in het gezellige Brielle is perfect voor een woningruil. Het ligt in een rustige buurt, met scholen en een supermarkt op loopafstand. De woning heeft een garage, wat extra gemak biedt. Een ideale plek voor diegene die vanuit een huurwoning wil ruilen.





