Beschrijving
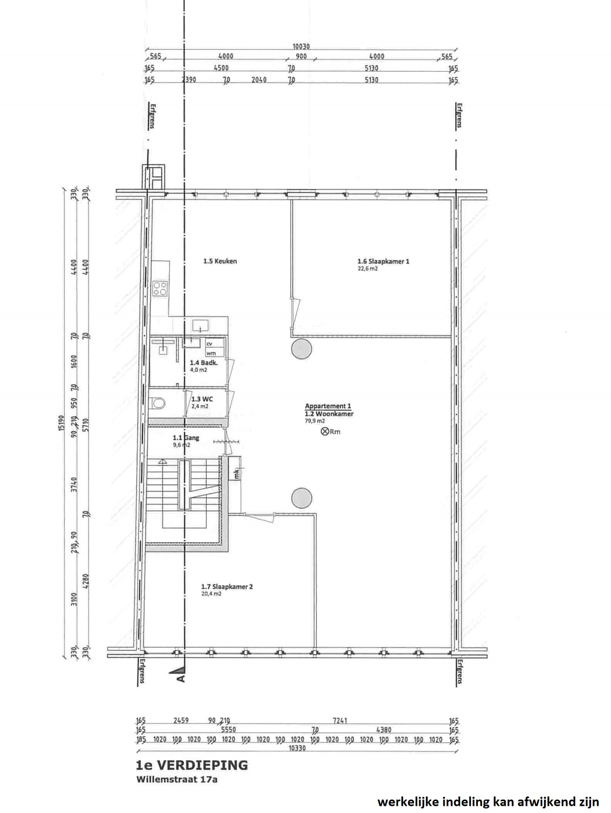
TE HUUR! Compleet nieuw, luxe en ruim 3 kamer appartement, gelegen in hartje centrum aan de Willemstraat. Het appartement is voorzien van 2 ruime slaapkamers, luxe keuken en badkamer. Het appartement is in het centrum gelegen, diverse winkels en restaurants in de nabije omgeving en het Centraal Station ligt op 5 minuten loopafstand.Begane grond:Gezamenlijke entree met trapopgang naar alle verdi…








