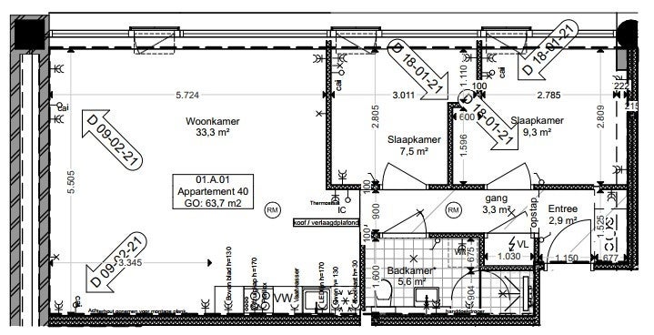
Beschrijving
Nette kamer in een recent vernieuwd 3-kamerappartement aan de Westzeedijk op loopafstand van het centrum van Rotterdam. Het appartement ligt in de levendige wijk Coolhaven waar je zo in de tram stapt richting de stad. Ook de A13 en A16 zijn snel bereikbaar.Je deelt het appartement met één andere student. Jullie maken samen gebruik van de lichte woonkamer aan de achterzijde en de open moderne ke…








