Beschrijving
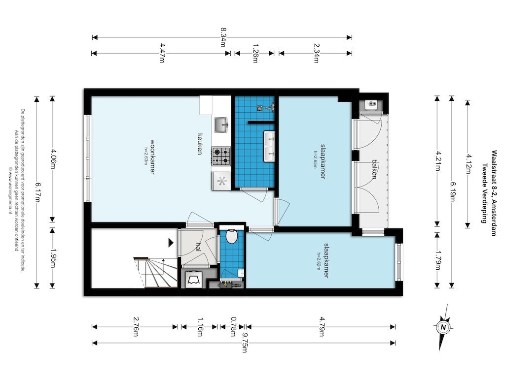
Deze charmante, mooi ingerichte appartement van 48 m², gelegen aan de Waalstraat in de rustige Rivierenbuurt, biedt een woonruimte met twee slaapkamers en een badkamer. De woning beschikt over een keuken en een woonkamer, plus een gezellig balkon met Franse deuren. Rivierenbuurt is bekend om zijn rustige elegantie, met klassieke Amsterdamse schoolarchitectuur en een sterke gemeenschapszin. Het …








