Beschrijving
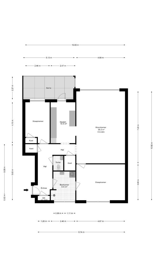
Dit ruime 3-kamerappartement met balkon is te huur in de Sprokkelenburg flat, gelegen bij de sfeervolle stadswallen in Gorinchem. Met een woonoppervlakte van 98 m² en een inhoud van 292 m³, biedt het een lichte woonkamer, twee ruime slaapkamers en een badkamer met douche en wastafel. Er is ook een separaat toilet, extra opbergruimte en een eigen berging op de begane grond. U woont op loopafstan…








