Beschrijving
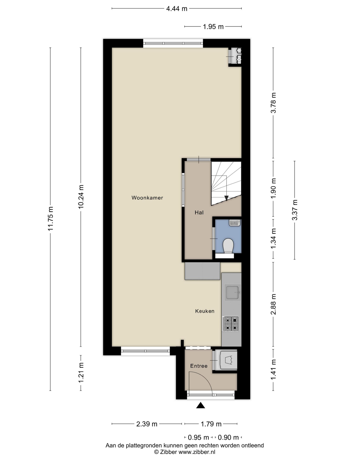
Te huur zeer ruim en centraal gelegen, volledig gerenoveerd luxe appartement van ca. 130 m² met groot dakterras. Het appartement is gerenoveerd met hoogwaardige materialen, waaronder nieuwe luxe keuken, badkamer, toiletten, deuren, ramen met dubbel glas, eiken vloeren, dimbare inbouwverlichting, wasruimte en luxe badkamer met dubbel wastafelmeubel en inloopdouche. Bovendien zijn de plafonds gel…








