appartement Sir Winston Churchillln Rijswijk

 3.900,00

SKU: c8df91779e92 Categorie:

Beschrijving

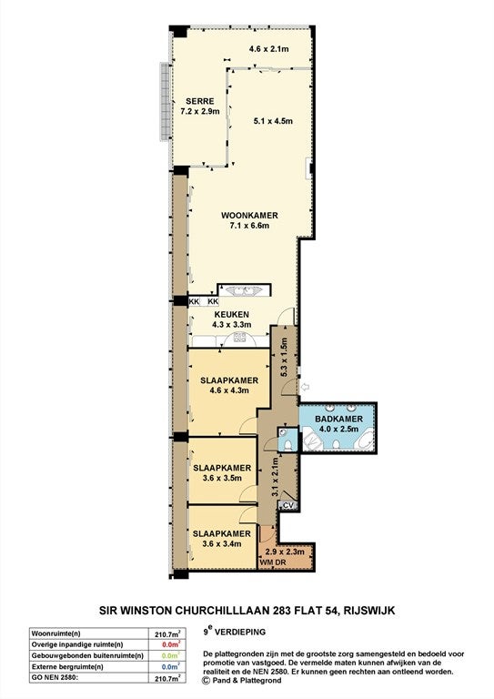
For English see below.Uniek riant ruim en licht 3-slaapkamer appartement, dit komt zelden op de markt. Gelegen op de negende verdieping van een modern appartementencomplex in Rijswijk, biedt dit ruime hoekappartement met drie slaapkamers een panoramisch uitzicht op Delft en Rotterdam. Met een indrukwekkende plafondhoogte van meer dan drie meter en kamerhoge ramen langs het grootste deel van de …

Extra informatie

Aantal kamers

Aantal slaapkamers

Woonoppervlakte

Bouwjaar

Adres

Postcode

Plaatsnaam

Type gebouw

Parkeerplaats

Gemeubileerd