Beschrijving
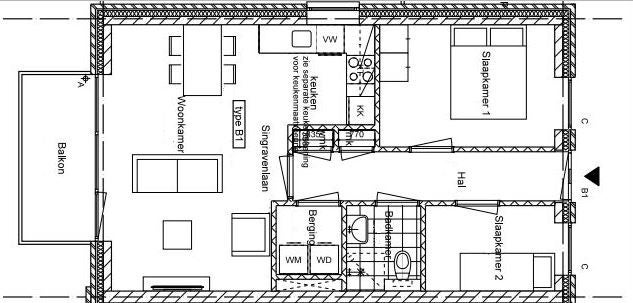
Wonen met New Yorkse flair in hartje Arnhem (foto’s ter illustratie) Ontdek het moderne stadsleven in het gloednieuwe appartementencomplex aan de Singravenlaan – een unieke plek waar stijl, comfort en duurzaamheid samenkomen. Het complex bestaat uit drie eigentijdse gebouwen die stuk voor stuk zijn ontworpen met oog voor detail en kwaliteit.De architectuur ademt een New Yorkse uitstraling: st…








