Beschrijving
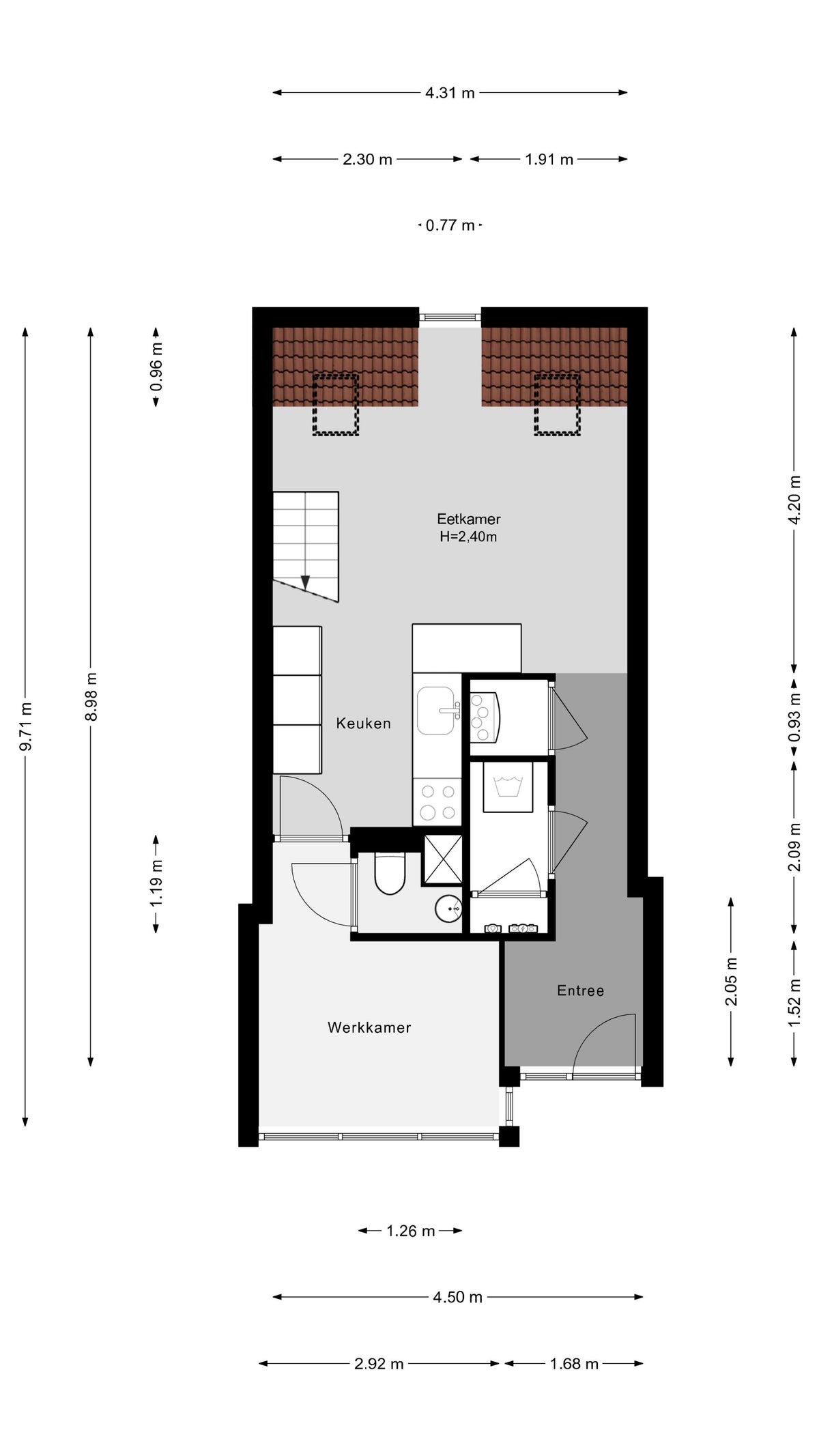
Te huur: Een karaktervol appartement met moderne afwerking, eigen parkeerplaats en een toplocatie in het hart van Rotterdam – een unieke kans voor wie centraal wil wonen met alle comfort binnen handbereik.Het huis wordt verhuurd onder de leegstandswet (vergunning is al verleend door de gemeente), waarbij o.a. de volgende voorwaarden (wettelijk) in acht genomen dienen te worden:- tijdelijke verh…








