Beschrijving
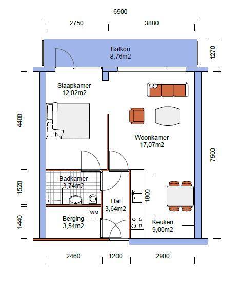
Appartement Schakelweg te Hoogvliet – Rotterdam Opgelet!!!!! wij bieden u een bijzonder leuk en betaalbaar ruim 2-kamer appartement aan op de 3e verdieping met zeer ruime fietsenstalling in de onderbouw. Dit appartement maakt onderdeel uit van een appartementencomplex met een dubbele liftinstallatie, intercom en gesloten portiek. Het appartementencomplex de “Rietplaat” ligt in een rustige wo…







