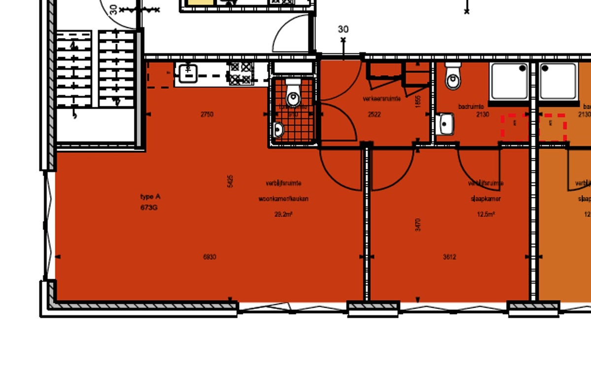
Beschrijving
Bovenwoning is een type appartement dat zich op de bovenste verdieping van een gebouw bevindt. Het biedt vaak uitzicht en kan variëren in grootte en indeling. Kenmerkend zijn de ruimte en de lichtinval, wat het aantrekkelijk maakt voor bewoners. Daarnaast kunnen bovenwoningen ook een balkon of dakterras hebben, wat extra ruimte buiten biedt. Deze appartementen zijn populair in stedelijke gebied…








