Beschrijving
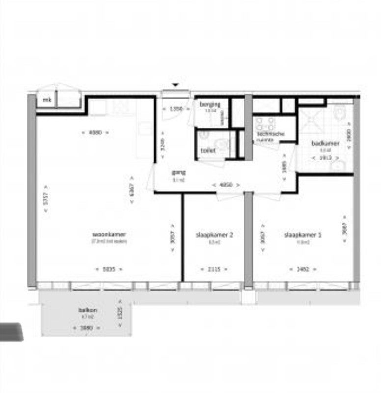
Ik bied mijn woning in Amsterdam-West (Laan van Spartaan) aan voor woningruil. Het is een moderne huurwoning in de vrije sector met een huur van €1506 excl. De woning ligt in een centrale locatie, met metro, tram, bus en snelwegen allemaal om de hoek, wat het ideaal maakt voor forenzen of gezinnen die in de stad willen wonen. Ik ben op zoek naar een 4-kamer appartement of een eengezinswoning in…




