Beschrijving
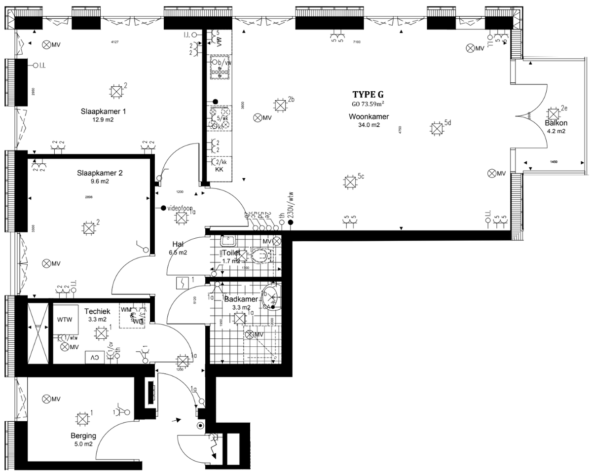
English below!Het nieuwe appartementencomplex ‘De Makelaar’ (oplevering 2020) heeft haar locatie in hartje centrum van Zaandam, direct naast de Hermitage. Een imposante woontoren in bouwstijl die inmiddels zo kenmerkend is voor de Zaandamse binnenstad; prachtige gevels, elegante afwerkingen en een uitgekiend gebruik van het sterke, inmiddels wereldberoemde, kleurenpalet.De Makelaar droeg bij aa…








