Beschrijving
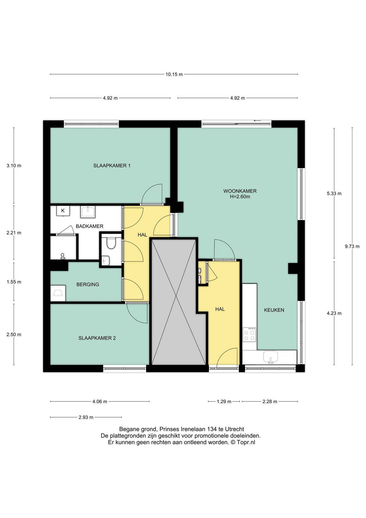
Vrij wonen in Zuilen met grote zonnige tuinRuime benedenwoning met zonnige tuin in de populaire wijk Zuilen. Heerlijk wonen in dit prachtige 3-kamer appartement met grote tuin op het zuiden en alle voorzieningen binnen handbereik. Het appartement bevindt zich op loopafstand van het winkelcentrum Rokade met een Albert Heijn, een goede bakker, slager, groenteboer en diverse andere winkels. Zuilen…








