Beschrijving
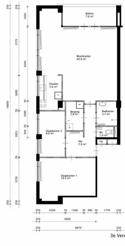
Belangrijk! Dit geldt uitsluitend voor een woningruil; je moet een huurwoning hebben om met deze huurwoning te kunnen ruilen.Dit ruime 3-kamer hoekappartement is gelegen in het bruisende hart van Amsterdam Nieuw-West. De omgeving biedt een diversiteit aan winkels, zorginstellingen (Zorgplein) en horecagelegenheden.Het appartement, gebouwd in 1985, is voorzien van een lift, dubbel glas, airco en…




