appartement Oostenburgermiddenstraat Amsterdam

 2.250,00

SKU: 4c5e051c5f45 Categorie:

Beschrijving

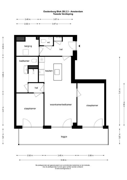
Per 1 december 2025 is deze gestoffeerde woning beschikbaar, met twee slaapkamers en een balkon. De indeling biedt een entreehal die toegang geeft tot de wc, berging en een woonkamer met open keuken, waar een fraaie lichtinval door de glazen schuifpui zorgt voor een aangename sfeer. De Zwaan, gelegen in de dynamische buurt Oostenburg, herbergt 54 appartementen in verschillende gebouwen, elk met…

Aanvullende informatie

Aantal kamers

Aantal slaapkamers

Woonoppervlakte

Bouwjaar

Adres

Postcode

Plaatsnaam

Type gebouw

Parkeerplaats

Gemeubileerd