appartement Ommelandsingel Kampen

 770,00

SKU: dd52c6090389 Categorie:

Beschrijving

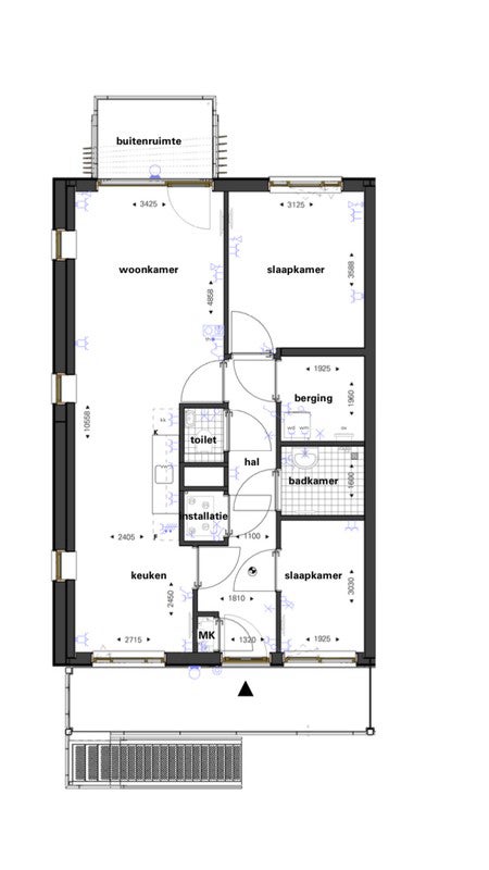
Belangrijk! Dit is alleen voor woningruil; je moet een huurwoning hebben om te kunnen ruilen. Ik woon in Kampen en wil ruilen met een woning in Zwolle door mijn werk (type woning maakt niet uit). Voor een eengezinswoning ben ik bereid te verhuizen tot max 25 km van Zwolle. Mijn huidige woning:●Nieuwbouwappartement (opgeleverd in 2024), sociale huur via Deltawonen●3e (bovenste) etage, hoekwoning…

Aanvullende informatie

Aantal kamers

Woonoppervlakte

Adres

Postcode

Plaatsnaam

Type gebouw

Parkeerplaats

Gemeubileerd