Beschrijving
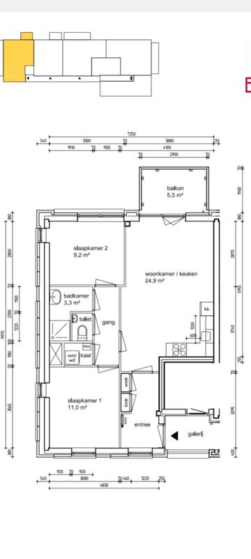
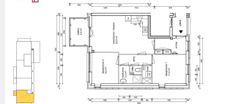
Belangrijk! Dit betreft een woningruil; je moet een huurwoning hebben. Aan de Nieuwe Osdorpergracht bevindt zich een nieuwbouw 3-kamerappartement (2023) op de tiende verdieping met twee liften. Het appartement heeft vloerverwarming en mechanische ventilatie in het hele huis. De woonkamer heeft een open keuken en toegang tot een groot balkon met uitzicht over Osdorp en Sloterplas. Er zijn aparte…





