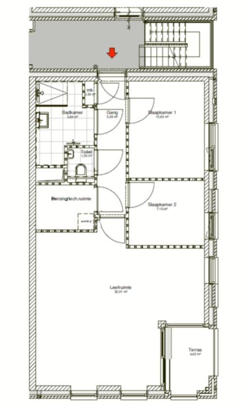
Beschrijving
Stadsappartement in het nieuwe complex Het Werfhuis, gelegen aan het ‘s-Gravenhofplein in het centrum van Hulst. In de directe omgeving van de nieuwe bioscoop, gezellige terrasjes en diverse restaurants.Dit hoekappartement bevindt zich op de tweede etage en heeft vrij uitzicht over het plein en over de stadswallen.Vanuit de lift komt u in de centrale hal en via de galerij bereikt u de voordeur …








