appartement Martinbaan Nieuwegein

 850,00

SKU: 63fa64b1cfce Categorie:

Beschrijving

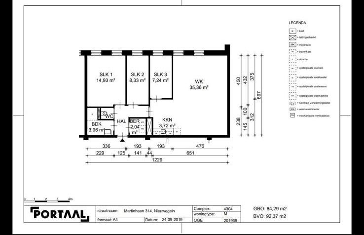
Belangrijk! Dit betreft een woningruil; je moet een huurwoning hebben voor deze ruil. Het gaat om een ruim appartement van 85m² met een woonkamer en open keuken. Het heeft 6 zonnepanelen, een warmtepomp, en is goed geïsoleerd. Het appartement is 3 jaar geleden gerenoveerd en verkeert in uitstekende staat. Er is een grote, beveiligde parkeergarage met camera’s en slagboom en verschillende buslij…

Aanvullende informatie

Aantal kamers

Woonoppervlakte

Adres

Postcode

Plaatsnaam

Type gebouw

Parkeerplaats

Gemeubileerd