appartement Marskramerstraat Amsterdam

 850,00

SKU: 9fd37af20141 Categorie:

Beschrijving

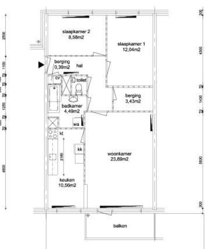
In Amsterdam Noord staat een 3-kamerwoning gelegen in een rustige buurt, ideaal voor woningruil. Deze huurwoning is goed bereikbaar met het openbaar vervoer, aangezien de bus voor de deur stopt, en ligt dichtbij de A10. De woning heeft een ruime woonkamer en keuken, twee slaapkamers en een berging. Tevens beschikt het over een buitenbox of schuur. De badkamer is uitgerust met een bad en de woni…

Aanvullende informatie

Aantal kamers

Aantal slaapkamers

Woonoppervlakte

Adres

Postcode

Plaatsnaam

Type gebouw

Parkeerplaats

Gemeubileerd