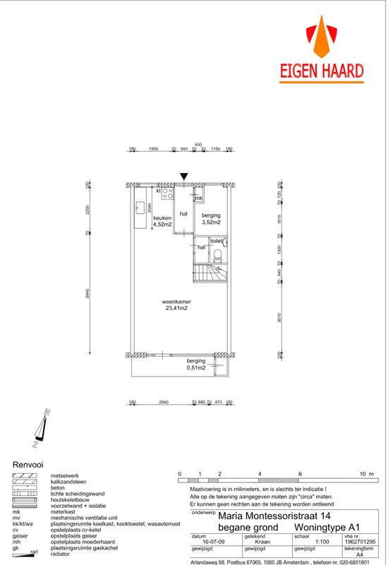
Beschrijving
Belangrijk! Dit betreft uitsluitend een woningruil; je moet een huurwoning hebben voor de ruil. Let op: VRIJE SECTOR MIDDEN SEGMENT naar SOCIALE HUURWONING!!! Ik bied een hoek eengezinswoning met 4 kamers, een grote zolder en zonnepanelen aan in Amsterdam Osdorp. Ik zoek: – minimaal 4 kamers – bij voorkeur een eengezinswoning met tuin, anders een appartement met lift en balkon – een SOCIALE huu…






