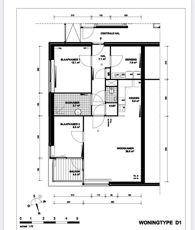
Beschrijving
Dit mooie en lichte 3-kamer appartement op de 2e verdieping heeft een open keuken en een ruime badkamer. Een balkon biedt extra buitenruimte en er is een inpandige berging/wasruimte voor extra gemak. De woonkamer geeft toegang tot de 2e slaapkamer en er is een gemeenschappelijke fietsenberging. Het gebouw is comfortabel uitgerust met een lift. Gelegen nabij het centrum van Spakenburg zijn alle …





