Beschrijving
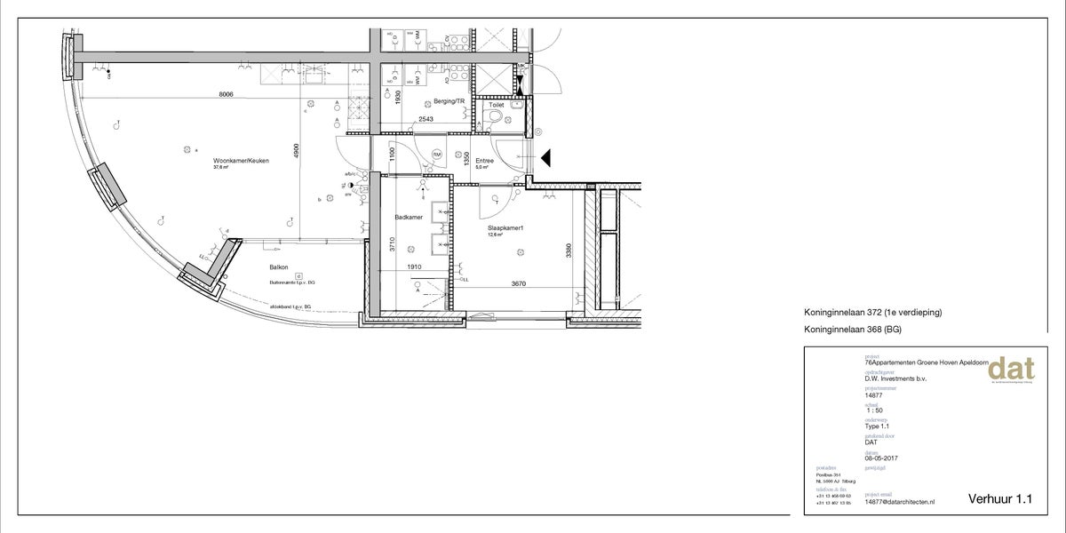
Dit prachtige 2-kamer appartement op de begane grond van complex ‘De Vorstin’ aan de Koninginnelaan in Kerschoten, heeft een oppervlakte van ca. 70 m². Gebouwd in 2018, het appartement biedt luxe sanitair en een open keuken met inbouwapparatuur. Via de hal heeft u toegang tot een ruime woonkamer, slaapkamer, inpandige berging en moderne badkamer met dubbele wastafel en inloopdouche. Het balkon …








