Beschrijving
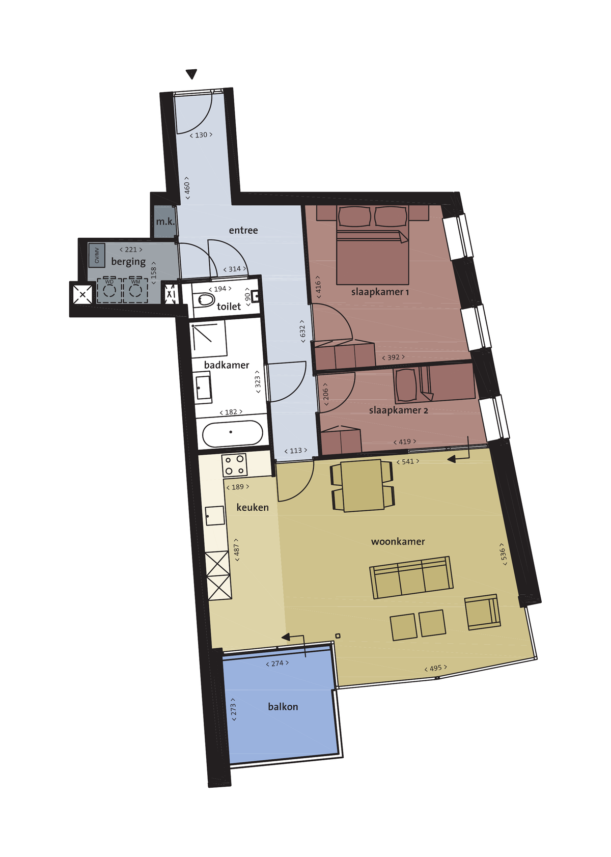
Zonnig appartement met balkon op het zuiden en uitzicht op de plas. Woonkamer ramen voorzien van screens. Badkamer met bad, douche en grote wastafel. Open keuken met inbouwapparatuur. Fitness en sauna inbegrepen bij huur. Huurprijs: €1210,- p.m. Servicekosten: €75,- p.m. Borg: 1 of 2 maanden. Verdieping: 5. Woonoppervlakte: 92m². Keukenapparatuur aanwezig. Lift: Nee. Energielabel: B. Verwarming…




