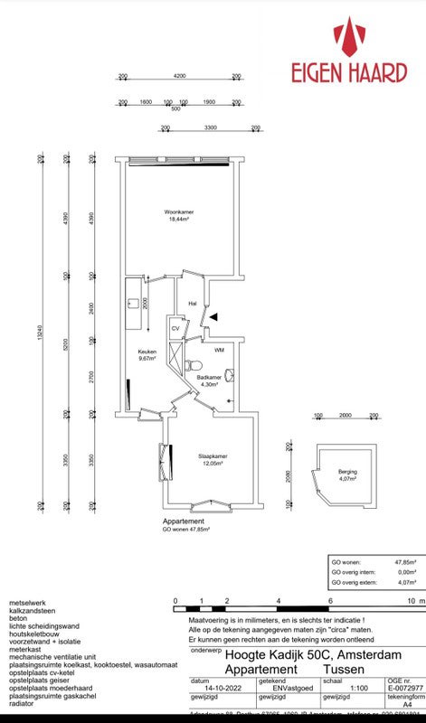
Beschrijving
Belangrijk! Dit geldt alleen voor woningruil; u moet een huurwoning hebben om te ruilen. Welkom op Hoogte Kadijk: Wonen in het hart van Amsterdam! Zoekt u een unieke plek waar de charme van oud Amsterdam samenkomt met de dynamiek van de stad? Onze woning op de kindvriendelijke Hoogte Kadijk is de perfecte match! De buurt is sfeervol en rustig gelegen, maar nabij het bruisende leven. Gelegen tus…







