Beschrijving
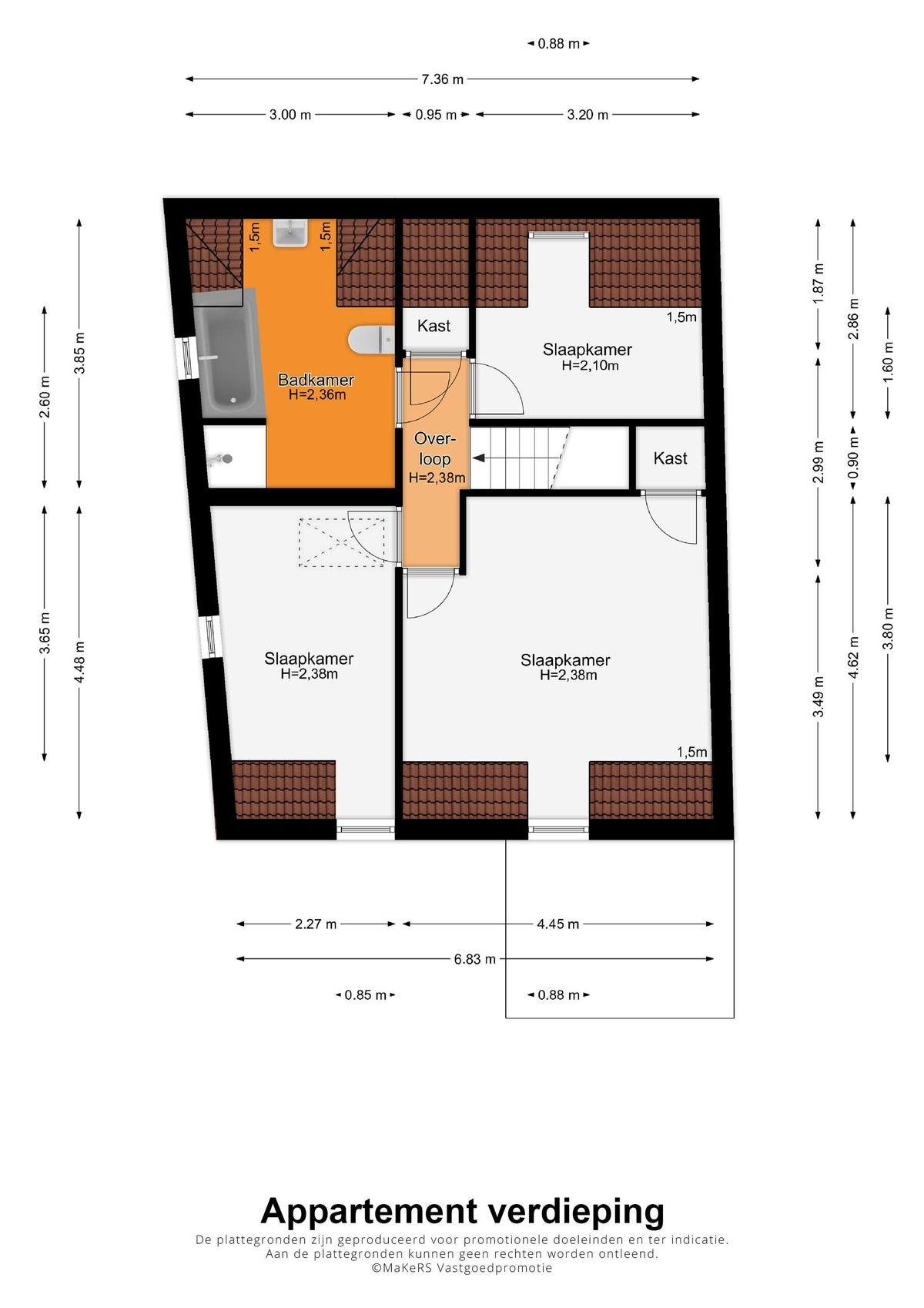
In een prachtig stukje Meerssen, op korte afstand van de luchthaven en uitvalswegen ligt dit zeer ruime 3 slaapkamer appartement met balkon. Meerssen ligt op ca. 6 km ten noorden van Maastricht en heeft een gezellig centrum en fraai park. Het appartement heeft 2 woonlagen en is voorzien van laminaat vloeren. Parkeren mogelijk met vergunning.Indeling BG: centrale entree met trappenhuis (geen lif…








