Beschrijving
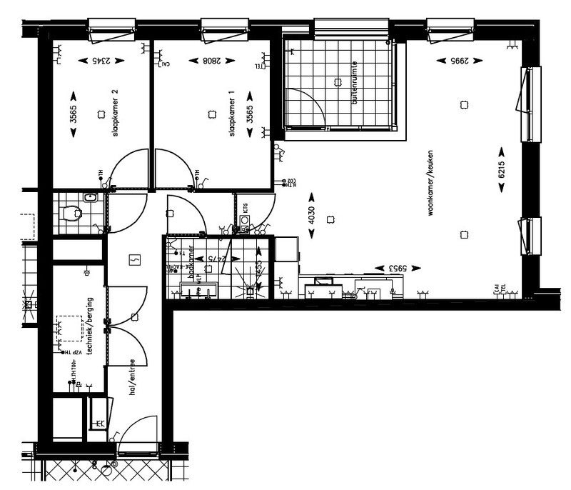
Dit appartement, opgeleverd in maart 2022, biedt een goed geïsoleerde woonruimte en beschikt over een loggia, een soort binnenbalkon. Het ligt op een gunstige locatie met tram 19 voor de deur, ideaal voor eenvoudig vervoer. In de omgeving zijn er veel speeltuinen, wat het aantrekkelijk maakt voor gezinnen. Let op: deze woningruil is alleen mogelijk voor huurders die ook een huurwoning hebben.




