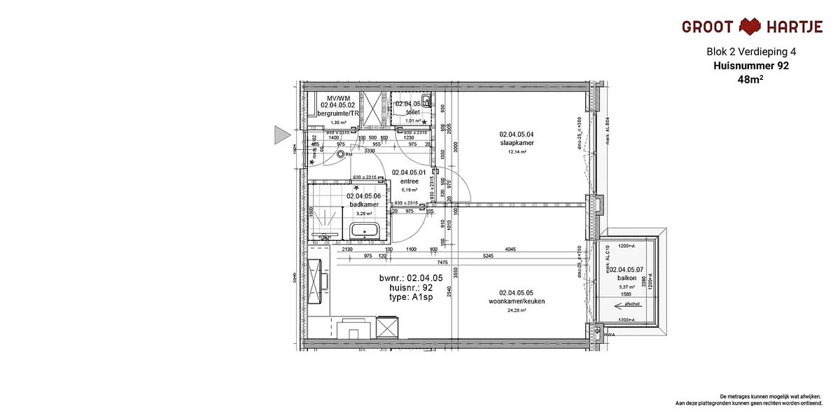
Beschrijving
In het bruisende centrum van Eindhoven, nabij het Philips Stadion, bevindt zich het nette 2-kamerappartement aan de Gerard Philipslaan 92. De woonkamer met open keuken biedt toegang tot een balkon, ideaal om buiten te zitten. De keuken is voorzien van een vaatwasser, kookplaat met afzuigkap, koel-vriescombinatie en combimagnetron. De badkamer heeft een douche en wastafel, met een apart toilet. …








