Beschrijving
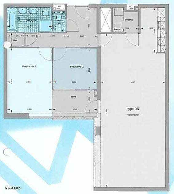
RIJSWIJK-EISENHOWER RESIDENCE: Lichte 3-kamerwoning, gelegen op de twaalfde verdieping van het complex. De woning is per 01-01-2026 beschikbaar. Interesse? Reageer dan via de contactknoppen naast deze beschrijving BELANGRIJKSTE KENMERKEN:•Foto’s zijn van vergelijkbaar object•Woning wordt kaal verhuurd •Vrij uitzicht•Gemeenschappelijke afgesloten fietsenberging•Huisdieren en roken niet toegestaa…








