Beschrijving
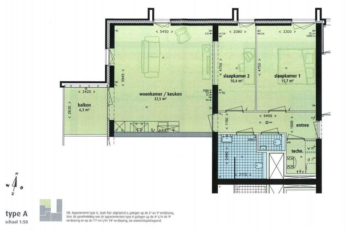
Dit appartement op de 14 verdieping (type A) heeft een totale woonoppervlakte van 78m² met oa. woonkamer/keuken van ca 32m2 en heeft 2 slaapkamers, een wasruimte en aparte toilet, badkamer, een technische ruimte en een balkon op het westen.Dit appartement heeft een parkeerplaats onder het complex, een eigen berging, gemeenschappelijke fietsenberging en twee liften. Dit appartement is gesitueerd…








