Beschrijving
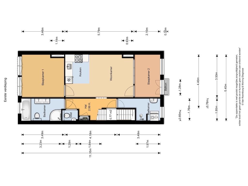
Dit moderne, gemeubileerde appartement van 60 m² heeft twee slaapkamers en twee balkons, op slechts 250 meter van het Sarphatipark. Beide slaapkamers bieden toegang tot een balkon en het appartement beschikt over twee moderne badkamers, een aparte toiletruimte, en een ruime woonkamer met keuken. Gelegen aan de Ceintuurbaan, een levendige straat in De Pijp, is het omringd door gezellige cafés en…








