Beschrijving
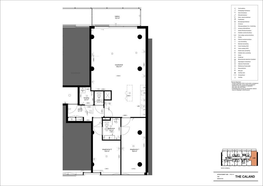
PROJECT THE CALAND: Ontdek de subtiele elegantie van The Caland: een ruim appartement met twee slaapkamers, gelegen op de derde verdieping, die dankzij het riante balkon een weids uitzicht biedt over de groene omgeving. In dit luxe project ervaar je een perfecte combinatie van historische grandeur en moderne finesse. Ideaal voor wie stijlvol en city-central wonen ambieert. Interesse? Reageer da…








