Beschrijving
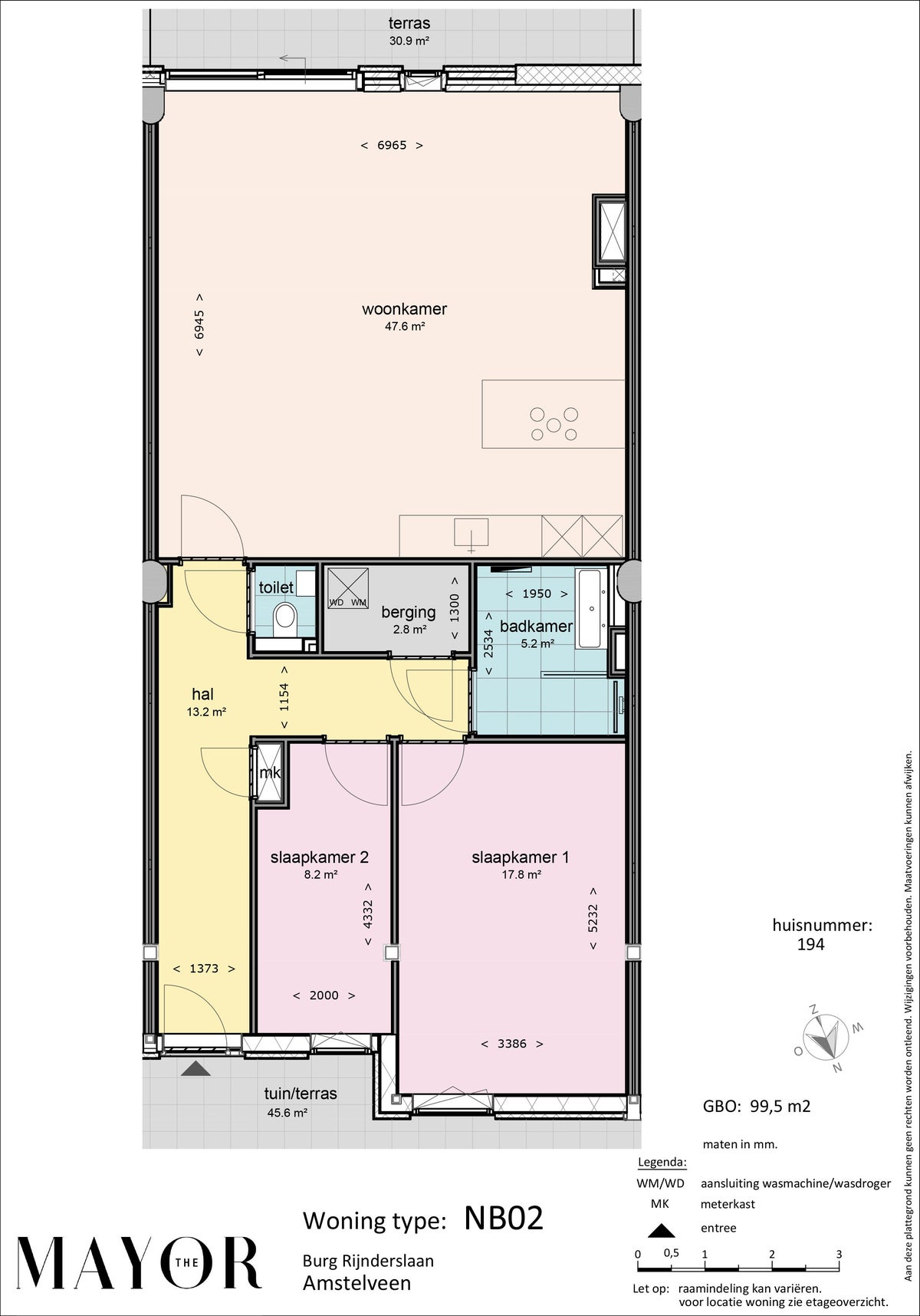
Dit royale driekamerappartement van ca. 99,5 m² op de begane grond biedt volop mogelijkheden voor indeling. Met vloerverwarming en een moderne, volledig uitgeruste keuken van Siemens, is dit appartement perfect voor wie van luxe houdt. De luxe badkamer beschikt over een inloopdouche en dubbele wasbak. Inclusief eigen parkeerplaats en separate berging. Ideaal gelegen met alles dichtbij. Interess…








