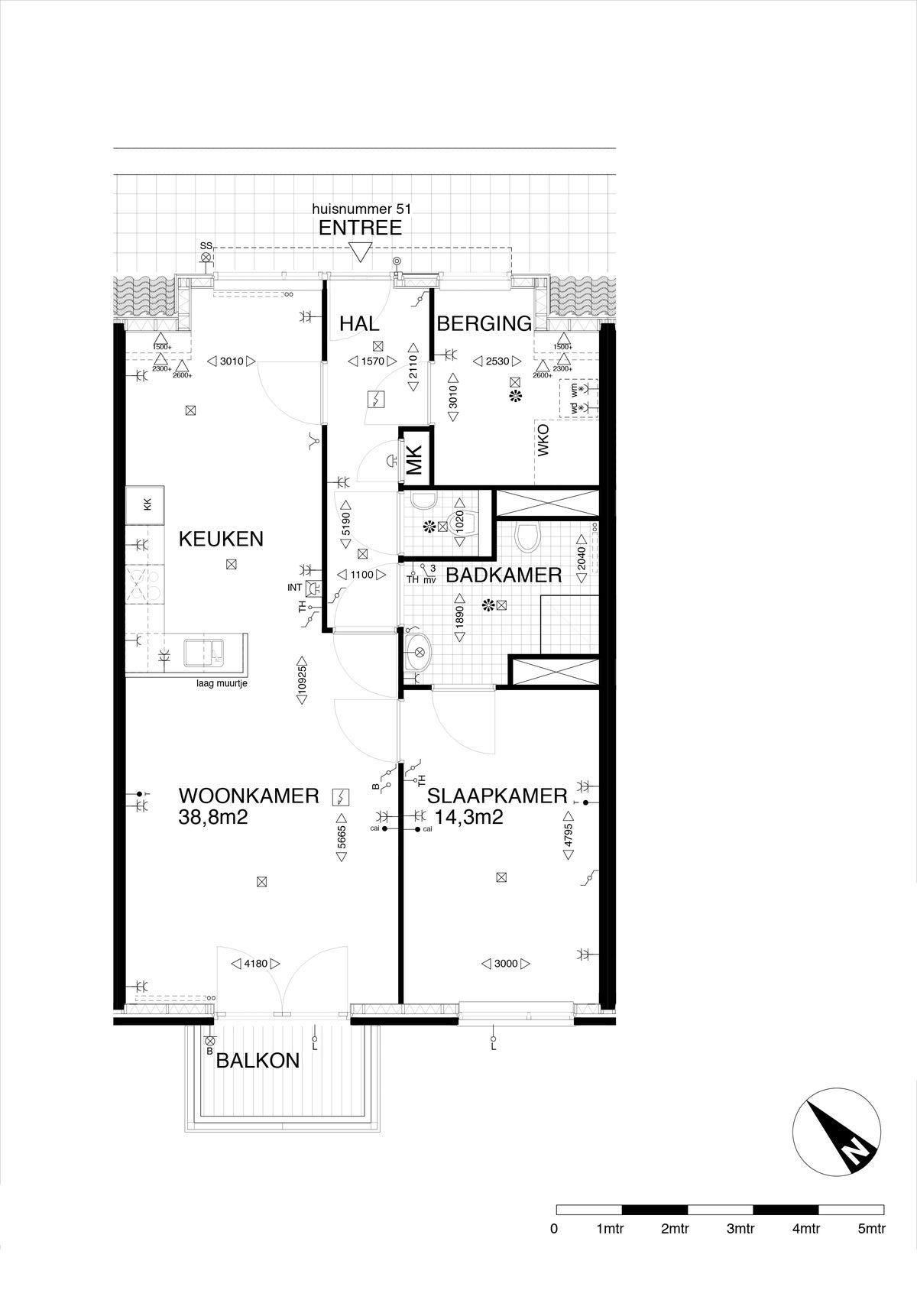
Beschrijving
Dit ruime 3-kamer appartement op de begane grond in Kudelstaart is perfect voor mensen vanaf 55 jaar die actief willen zijn in een sociale omgeving. Met een woonoppervlakte van ca. 58 m2, een open keuken en een lift is het appartement goed bereikbaar. De locatie biedt rust, groen en nabijheid van winkels en de Westeinderplassen. Ideaal voor wie houdt van een waterrijke omgeving en een centrale …








