Beschrijving
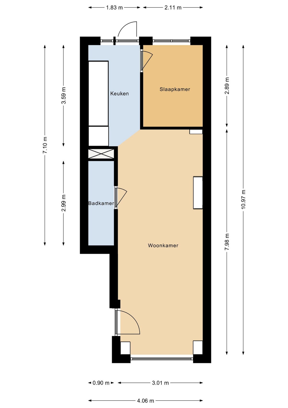
Charmant appartement uit 1900 met een fijne tuin in het hart van Utrecht!Dit gezellige appartement is gelegen aan de Bekkerstraat 8-BG, 3572 SH Utrecht, in een rustige woonwijk met uitstekende verbindingen naar het openbaar vervoer. Hierdoor bent u snel in het centrum of andere delen van de stad, terwijl u geniet van de rust van de buurt.De ruime woonkamer biedt een lichte en uitnodigende leefr…








