Beschrijving
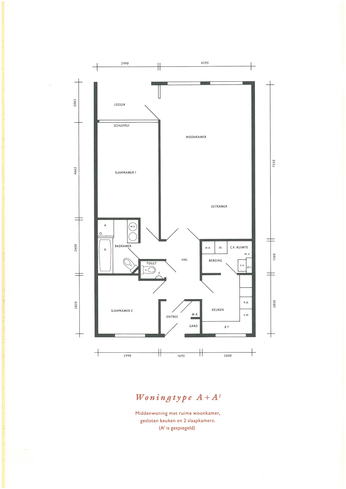
Dit ruime en lichte 3-kamerappartement op de 2e verdieping aan het Amstelplein biedt een unieke woonsituatie in het centrum van Uithoorn. Het appartement kijkt uit op het levendige plein en het nabijgelegen Zijdelmeer, ideaal voor wandelingen en vaartochten. Alle voorzieningen bevinden zich binnen handbereik in deze comfortabele woonlocatie. Met een woonoppervlakte van circa 85 m² omvat de woni…








