Beschrijving
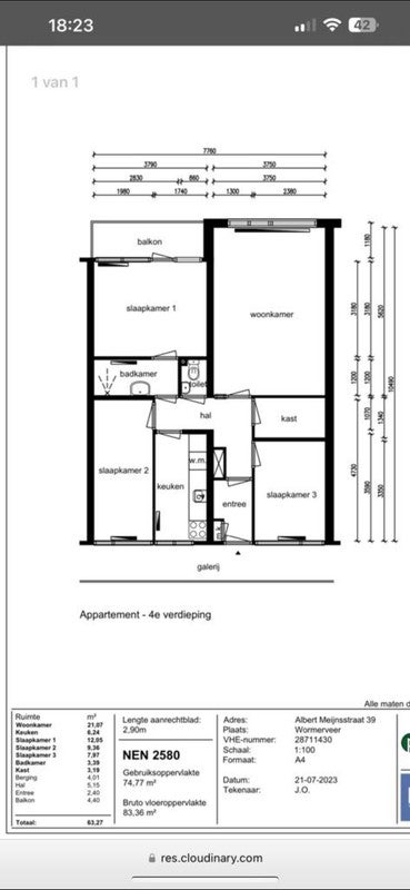
Belangrijk! Dit geldt uitsluitend voor een woningruil; je moet een huurwoning hebben om met deze huurwoning te kunnen ruilen.Dit prachtig gerenoveerde appartement met lift, gelegen op de vierde verdieping, waardoor u de hele dag geniet van een overvloed aan natuurlijk licht met een mooie uitzicht op het wandelpark. De woning beschikt over drie ruime slaapkamers en een comfortabele woonkamer, pe…







